Sitzung
UPB/024/2006
Gremium
Ausschuss für Umwelt, Planen und Bauen
Raum
Großer Sitzungssaal, Rathaus, Markt 8, 48653 Coesfeld
Datum
06.12.2006
Zeit
16:00-18:00 Uhr
Öffentlicher Teil: |
|||
| Ö 1 | Mitteilungen des Ausschussvorsitzenden und Bericht der Verwaltung
Beschluss: zur Kenntnis genommen | ||
| Ö 2 | 58. Änderung des Flächennutzungsplanes (im Bereich "Rebrügge" / "Heerdmer Esch")
-Abwägung und Beschlussfassung über eingegangene Anregungen -Beschluss des Änderungsplanes -Beschluss der Begründung Beschluss: mehrere Beschlüsse >> Niederschrift | 237/2006 | |
| Ö 3 | Aufstellung des Bebauungsplanes Nr. 114 "Rebrügge"
-Abwägung und Beschlussfassung über eingegangene Anregungen -Naturschutzrechtliche Eingriffsregelung -Satzungsbeschluss -Beschluss der Begründung Beschluss: mehrere Beschlüsse >> Niederschrift | 160/2006 | |
| Ö 4 | Aufstellung des Bebauungsplanes Nr. 82 "Heerdmer Esch"
-Abwägung und Beschlussfassung über eingegangene Anregungen -Naturschutzrechliche Eingriffsregelung -Satzungsbeschluss -Beschluss der Begründung Beschluss: mehrere Beschlüsse >> Niederschrift | 236/2006 | |
| Ö 5 | 60. Änderung des Flächennutzungsplanes im Bereich des Sondergebietes Weßlings Kamp
-Abwägung und Beschlussfassung über eingegangene Anregungen -Beschluss des Änderungsplanes -Beschluss der Begründung Beschluss: mehrere Beschlüsse >> Niederschrift | 238/2006 | |
| Ö 6 | Aufstellung des Bebauungsplanes Nr. 113 "Sondergebiet Weßlings Kamp"
-Abwägung und Beschlussfassung über eingegangene Anregungen -Naturschutzrechtliche Eingriffsregelung -Satzungsbeschluss -Beschluss der Begründung Beschluss: mehrere Beschlüsse >> Niederschrift | 239/2006 | |
| Ö 7 | 4. Änderung des Bebauungsplanes Nr. 72 "Otterkamp II"
-Beschluss zur Öffentlichkeits- und Behördenbeteiligung -Beschluss zur Durchführung der öffentlichen Auslegung Beschluss: mehrere Beschlüsse >> Niederschrift | 240/2006 | |
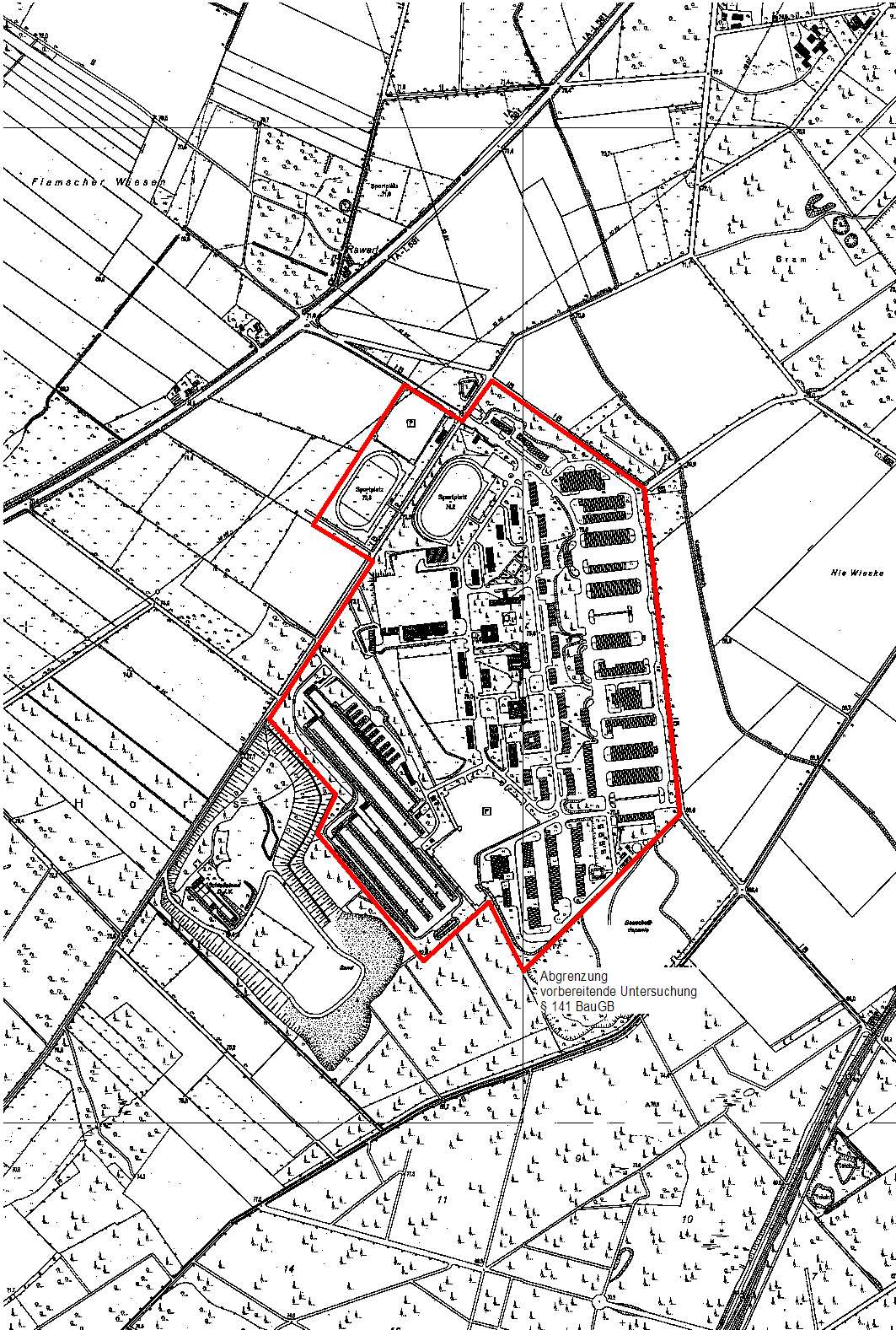
| Ö 8 | Beschluss über den Beginn der vorbereitenden Untersuchungen gemäß § 141 BauGB
Beschluss: mehrere Beschlüsse >> Niederschrift | 259/2006 | |
| Ö 9 | Stand des Bebauungsplanverfahrens Nr. 7 Am Bühlbach - Verkauf der Johannesschule
Beschluss: zur Kenntnis genommen | 244/2006 | |
| Ö 10 | Antrag der FDP-Fraktion vom 13.11.2006
hier: Überprüfung und Sanierung von Baumstandorten Beschluss: zurückgezogen | 245/2006 | |
| Ö 11 | Verpachtung der Leichenhalle Coesfeld
Beschluss: zur Kenntnis genommen | 219/2006 | |
| Ö 12 | Anfragen
Beschluss: zur Kenntnis genommen | ||
Nicht öffentlicher Teil: |
|||
| N 1 | Mitteilungen des Ausschussvorsitzenden und Bericht der Verwaltung | ||
| N 2 | Verpachtung der Leichenhalle Coesfeld | ||
| N 3 | Anfragen | ||
